
一屋一人,一猫一狗,三餐四季。

楼盘:君悦湾
面积:265㎡
风格:极简侘寂



一个人送走落日,一个人等待星光。于一些人而言,是孤独;但于另外一些人而言,则是享受和自由。
说到底,人生的意义都要回归自我。当今时代,从来不乏自我意识觉醒和实现。
本案的业主小姐姐正是这样一个懂得为自我所实现的人,265㎡的别墅一个人住,抹去原始温馨的结构,改为一人一猫一狗同居。

大抵对于多数人而言,这样的新居结构不被理解,但她深知,正是这种对于未来生活的笃定,从而无比清醒知道应该怎么规划自己的生活。

// 设计思路 //
# 为了家中猫狗和谐相处,在空间划分上,将地下室设计成狗狗的主要活动区,一楼二楼和卧室则是高冷小猫咪的领地。

# 将原始直线呆板的楼梯改为圆润的圆弧形楼梯,移至原始位置的对立面,与电梯并作一处,使得动线更为科学流畅。

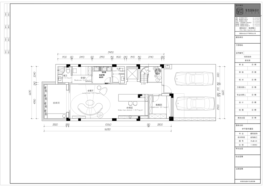
设计平面图
————
曲直有度
大胆的拱形元素设计
拥有圆弧度的拱形元素,自带一种和谐、庄严的感觉,圆润弧线的协调往往能带来一种独特的、百看不腻的永恒美感,在空间中能营造出独特的艺术感。

年轻的业主个性独特,希望新家的一切,都能与当下大相径庭,不落窠臼。
设计师在窗户、门框和垭口的设计上大胆融入拱门元素,搭配原木材质于素净温柔的米白色调艺术漆,拱形的每一处门与窗,都能成为空间中一处巧妙的取景框。


拱形的加入,摒弃传统的封闭,不仅在室内空间中增强采光,更是丰富了通透与层次感,带来温柔又沉静的质感。
日常走动之间,拱形门带来延伸的透视感,每一帧的当下,颇具艺术美感。

————
光影随行
无主灯+线性光
光影存在于空间,给予空间基本照明的同时,更营造了空间氛围与视觉美学。
客厅的灯是散落的点点星光灯,无规则散落客厅顶面之上;而餐厅则是一盏简约吊灯搭配弧形线型灯,宛如一轮明月,与客厅相互呼应,星月交织。

游走在极简与温柔之间,纯净的米白色调搭配顶面游走的线灯,自然光与人造光相互交织,光影随行,在点、线、面上流露出室内环境干净、特别、不落俗套的气质和艺术形态。

——————
猫狗同住
一人一猫一狗,三餐四时
在业主最初的设想中,单纯仅是为了家中一猫一狗同住的居所能更宽敞舒适而置业换居,在随着设计的一步步推进,这个新的居所,带来的不仅仅只是居住的需求,更多关于家的情感,也在一步步根植心中。

为避免家中两个活宝打闹,业主与设计师决定分层而设。
地下一层是专属于狗狗的天地,单独只属于它的洗浴区,通透的阳光房、绿植和硅藻泥,在空间中呈现出更丰富的自然气息,宽阔,自由。

地上一层与二层是高冷猫咪的领地区域,环保无味木材的猫爬架,来去自由的不设门的设计,不设屏障不设界限,自然、放松。


温柔、沉静、不羁、单一、多元、时尚……最终糅合成一个有仪式感有自由感的家。



一猫一狗,一人三餐四季,享受生活,享受当下,趟出桎梏,趟出条条框框,浮生若梦,单枪匹马的人生也可以很酷。
星杰设计主张
“人生的第二空间”,是个性、是爱好、是理想,是自在真我的空间表达和梦想呈现,兼顾别墅生活的多样性和个性化,完美平衡家庭空间与私属空间之间的关系,让每一位别墅大宅居住者拥有“共处悦他,独处悦己”的别墅生活方式。

